歐式五層復式別墅施工圖紙及效果圖_農村自建別墅設計,鼎川建筑

購圖前重要說明:
購買本套圖紙僅提供打印好的圖紙一份,我們不出售電子文件、光盤。我們設計的圖紙非常詳細,用A3規格打印圖紙,比傳統藍圖更清晰、容易復印、方便收藏,可以直接應用到施工現場。售后服務僅為圖紙答疑,不包任何修改,因為只要其中一張圖紙改變,其它圖紙相應均需修改,工作量較大,所以我們不包修改。如果您個性要求較多需按要求訂做設計,請查看 別墅設計業務流程,并聯系設計客服咨詢設計收費標準。
詳細介紹
圖紙屬性 | |||
編號: DC1331 | 層數: 五層 | 結構形式: 框架結構 | 主體造價: 100-120萬 |
開間: 13米 | 進深: 12米 | 占地面積: 175平方米 | 建筑面積: 809平方米 |
圖紙內容 | ||||
建 筑 圖: | 包含建筑總說明、平面圖、立面圖、剖面圖、樓梯大樣圖、門窗尺寸、節點大樣等 | |||
結 構 圖: | 包含基礎平面施工圖、各層梁、柱、樓板配筋及大樣圖等 | |||
給排水圖: | 包含各層給排水平面圖、給排水系統圖及大樣圖等 | |||
電 氣 圖: | 包含配電系統圖、各層照明平面圖、插座平面圖、弱電平面圖、防雷以及接地平面圖等 | |||
設計功能 | ||||
一 層: | 會客廳(中空)、廚房、餐廳、臥室、衛生間 | |||
二 層: | 臥室(附衛生間)、臥室、衛生間 | |||
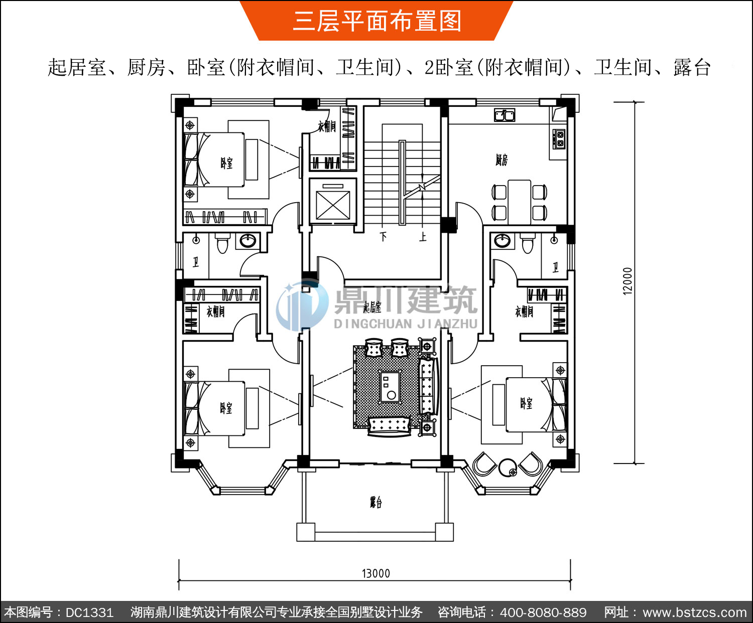
三 層: | 起居室、廚房、臥室(附衣帽間、衛生間)、2臥室(附衣帽間)、衛生間、露臺 | |||
四 層: | 起居室、廚房、臥室(附衣帽間、衛生間)、2臥室(附衣帽間)、衛生間 | |||
五 層: | 休息室、健身房、KTV、棋牌室、洗衣房、儲藏間、衛生間、陽臺、2露臺 |
效果圖:
相關推薦
-
大氣的復式四層帶旋轉樓梯別墅圖紙及效果圖_新農村別墅設計,鼎
¥3980.00 查看
-
新中式四層復式別墅施工圖紙及效果圖_農村自建別墅設計,鼎川建
¥1980.00 查看
-
新中式四層復式別墅施工圖紙及效果圖_農村自建別墅設計,鼎川建
¥1980.00 查看
-
歐式四層別墅施工圖紙及效果圖_農村自建別墅設計,鼎川建筑
¥1980.00 查看