80萬帶裝修能在農村建出這樣的房子,城里人表示羨慕不已!
當80萬的價格在很多的城市都不夠付一套房子首付的時候,有人卻用這80萬在農村建起了一棟三層別墅,關鍵這價格還是算上了裝修部分的,你說扎心不?而這80萬帶裝修的三層農村別墅就來自福建的李先生,我們一起來看他的建房實拍。
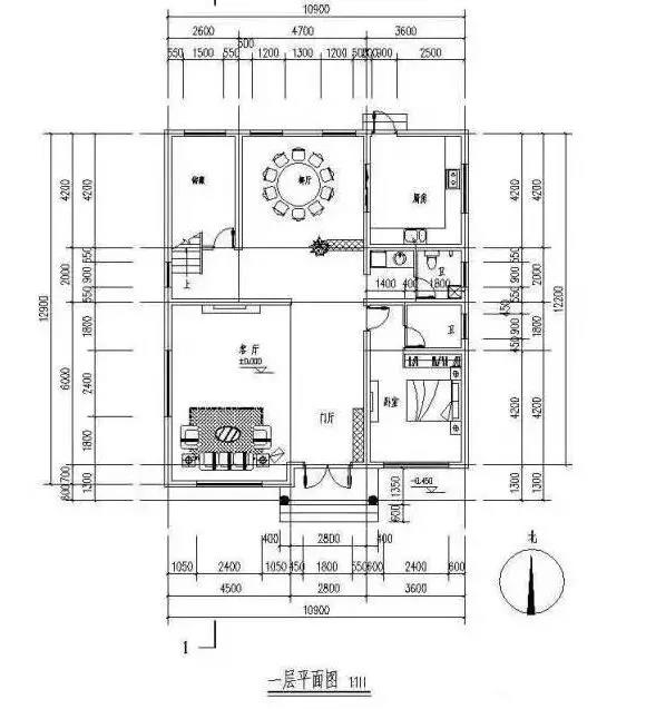
平面效果圖
農村蓋房子都要請風水師看風水,擇黃道吉日開建。
原來的老房子已經拆了,要先清理干凈再開始建。
放線挖基槽做條形基礎。
土方開挖形成條形基槽。
在挖好的基槽底面澆筑素混凝土。
待基礎素混凝土養護完成后,綁扎鋼筋做地圈梁。
安裝模板,澆筑混凝土。
旁邊兩棟是早就已經蓋好的房子,自己這棟還沒完工的看起來特別顯眼。
完工后的門斗看起來漂亮的不像話,城里人再有錢也不能把房子做成這樣!
房子外立面采用真石漆裝飾整齊美觀。
房子主體已完工,前前后后共花費了數月時間,真是苦累并存。
室內裝修實景:
夜景圖展示:
看完這個是不是不過癮呢?據說這棟別墅帶裝修80萬,就這施工水平和材料效果,您覺得怎么樣呢?
.jpg)
本文由別墅圖紙超市編輯發布,如需了解更多,可登錄網站主頁http://www.www.xuzonghao.cn/,或者撥打我們的免費電話400-8080-889在線咨詢。
>>>>推薦閱讀:平頂別墅不夠洋氣?那是因為你沒看過這款城堡造型別墅設計圖!
>>>>推薦閱讀:11.7×12米三層農村別墅建造實拍,大氣的效果讓人心服口服!
>>>>推薦閱讀:二層帶閣樓別墅設計,多臥室帶露臺,主體造價28萬能搞定!