別急著開工!這6款最受歡迎的農村別墅趕緊看看,30萬造價超值!
下半年正是農村建房的好時候,建房的多了,施工隊都要去搶。建房是大事,千萬急不得,建房子之前戶型一這要先看好,免得建出來自己不如意,而建房萬萬將就不得,這6款農村自建別墅,趕緊看看,30萬造價,比城里買房劃算多了。
新農村二層帶露臺小別墅
編號: DC0352
結構形式: 磚混結構
開間: 12.1米 進深: 13.9米
占地面積: 151.09平方米
建筑面積: 300.11平方米
主體造價: 25-30萬
首層戶型:
二層戶型:
一 層:堂屋、客廳、臥室(附衛生間)、臥室、廚房、餐廳、衛生間
二 層:起居室、臥室(附衛生間)、臥室(附陽臺)、臥室、衛生間、露臺
二層帶車庫露臺別墅
建成實拍
編號: DC0159
結構形式: 磚混結構
開間: 14.34米 進深: 11.34米
占地面積: 157.59平方米
建筑面積: 290.71平方米
主體造價: 24-28萬
首層戶型:
圖紙預覽:
一 層:門廳、客廳、2臥室、廚房、餐廳、衛生間、車庫
二 層:主臥室(附衛生間,陽臺)、臥室(附陽臺)、臥室(附書房)、臥室、棋牌室、衛生間
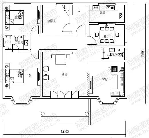
新農村二層實用別墅
建成實拍
編號: DC0186
結構形式: 磚混結構
開間: 13米 進深: 10.6米
占地面積: 137.9平方米
建筑面積: 272.7平方米
主體造價: 23-28萬
首層戶型:
圖紙預覽:
一 層:堂屋、客廳、主臥(附衛生間)、臥室、廚房、餐廳、儲藏室、衛生間
二 層:客廳(附陽臺)、主臥(附衛生間)、3臥室、衛生間
閣 樓:儲藏間
農村二層小別墅
建成實拍
編號: DC0054
結構形式: 磚混結構
開間: 11.34米 進深: 13.31米
占地面積: 136.40平方米
建筑面積: 254.44平方米
主體造價: 20-25萬
一 層:客廳、臥室(附衛生間)、臥室、儲藏室、廚房、餐廳、衛生間
二 層:休息區(附陽臺)、臥室(附衛生間)、2臥室、書房、衛生間
頂 層:露臺
新農村三層帶露臺自建房
建成實拍
編號: DC0221
結構形式: 磚混結構
開間: 9.96米 進深: 12.96米
占地面積: 111.68平方米
建筑面積: 305.6平方米
主體造價: 22-28萬
首層戶型:
圖片預覽:
一 層:客廳、2臥室、廚房、餐廳、衛生間
二 層:客廳、3臥室、書房、衛生間、陽臺
三 層:3臥室、書房、衛生間、露臺
新農村二層帶露臺自建別墅
建成實拍
編號: DC0016
結構形式: 磚混結構
開間: 8.6米 進深: 10.4米
占地面積: 87.7平方米
建筑面積: 162.8平方米
主體造價: 12-16萬
首層戶型:
圖片預覽:
一 層:客廳、臥室、廚房、餐廳、儲藏室、衛生間
二 層:主臥(附書房,露臺)、2臥室、衛生間
現階段在農村建房,要有自己的特色,農村人就喜歡,簡單大方,還有就是內部空間布局合理合適,用起來方便舒心,所以一般在建房之前都會選擇實用一點的戶型,而今天給大家分享6款農村別墅,不光光是簡單實用,而且外觀的設計還是非常的有氣質的。喜歡就快轉發收藏吧!
.jpg)
本文由別墅圖紙超市編輯發布,如需了解更多,可登錄網站主頁http://www.www.xuzonghao.cn/,或者撥打我們的免費電話400-8080-889在線咨詢。
>>>>推薦閱讀:6款帶走廊的自建小別墅,實用還別致,第2款造價才18萬!
>>>>推薦閱讀:12款占地不足百平的農村別墅,經濟實用,最高造價不過26萬!
>>>>推薦閱讀:10款戶型嚴謹私密性強的農村別墅,布局必須給滿分!