6款農村別墅設計,帶獨立廚房,這樣的戶型才最適合農村!
相信很多人都住過以前的老房子,以前的房子廚房都是獨立的。因為廚房是一個油煙味比較重的地方,所以一般都不在住房之內。如今的廚房就不一定是這樣呢?但是不乏有些朋友還存在著住老房子的生活習慣。今天分享6款獨立廚房的自建房給有需要的朋友吧!
編號:DC0212
層數: 二層
結構形式: 磚混結構
主體造價: 16-20萬
開間: 15.9米
進深: 7.8米
占地面積: 114.65平方米
建筑面積: 201.43平方米



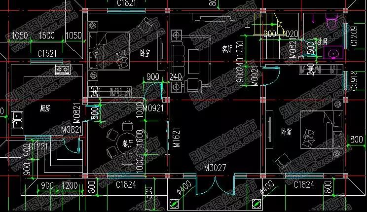
一 層: 客廳、2臥室、廚房、餐廳、衛生間
二 層: 客廳、臥室(附書房,衛生間)、臥室、衛生間、露臺
圖紙預覽:



編號:DC0308
層數: 二層
結構形式: 磚混結構
主體造價: 28-32萬
開間: 18.375米
進深: 12.595米
占地面積: 156.86平方米
建筑面積: 339平方米




一 層: 客廳、臥室(附衛生間)、2臥室、廚房、餐廳、衛生間、涼亭
二 層: 起居室(附露臺)、臥室(附書房,衣帽間,衛生間,露臺)、臥室(附露臺)、2臥室、衛生間
圖紙預覽:



編號:DC0213
層數: 二層
結構形式: 磚混結構
主體造價: 18-22萬
開間: 13米
進深: 12.8米
占地面積: 172.65平方米
建筑面積: 250.95平方米



一 層: 內院、堂屋、客廳、臥室(附衛生間)、2臥室、廚房、儲藏室、衛生間
二 層: 客廳、主臥(附衛生間,露臺)、3臥室、衛生間
圖紙預覽:


編號:DC0115
層數: 二層
結構形式: 磚混結構
主體造價: 18-22萬
開間: 15.84米
進深: 9.44米
占地面積: 134.8平方米
建筑面積: 225.6平方米



一 層: 客廳、臥室、活動房(或臥室)、廚房、餐廳、雜物間、衛生間
二 層: 4臥室、衛生間、露臺
圖紙預覽:



編號:DC0053
層數: 二層
結構形式: 磚混結構
主體造價: 18-24萬
開間: 11.6米
進深: 13.5米
占地面積: 119.14平方米
建筑面積: 215.74平方米



一 層: 客廳、2臥室、廚房、餐廳、農具房、衛生間、庭院
二 層: 起居室(附陽臺)、2臥室、衛生間、露臺
三 層: 露臺
圖紙預覽:


編號:DC0341
層數: 三層
結構形式: 框架結構
主體造價: 40-45萬
開間: 15.6米
進深: 13.2米
占地面積: 173.11平方米
建筑面積: 443.83平方米




一 層: 門廳、客廳(中空)、臥室、廚房、餐廳、衛生間、車庫
二 層: 起居室、臥室(附書房,衣帽間,陽臺,露臺,衛生間)、臥室(附露臺)、衛生間
三 層: 健身廳、臥室(附衣帽間)、臥室(附陽臺)、衛生間、露臺
以上6款小別墅,廚房都相對比較獨立,不會影響內部居住環境,并且各有特色,那你最喜歡哪款呢?
.jpg)
本文由別墅圖紙超市編輯發布,如需了解更多,可登錄網站主頁http://www.www.xuzonghao.cn/,或者撥打我們的免費電話400-8080-889在線咨詢。
>>>>推薦閱讀:精選8款造價25萬左右農村自建別墅,花最少的錢建最好的房子!
>>>>推薦閱讀:7款框架結構的二層別墅設計,空間靈活造型美關鍵還抗震!
>>>>推薦閱讀:這6款精致的三層農村別墅,占地竟然都不要100平!你心動嗎?