精選8款造價25萬左右農村自建別墅,花最少的錢建最好的房子!
自建房除了要有實用的外形,室內布局要穩重大氣更要實用,要貼近咱們農村人的生活,實用才最重要,保證了農家人的生活習性,點滴處理更能看設計師與施工隊的用心,這樣蓋出來的房子,才最值得我們去自建生活!今天帶來8套造價在25左右的農村別墅,不僅外形時尚,布局也不錯。
新農村二層小別墅自建別墅
戶型基本信息
編號: DC0345
結構形式: 磚混結構
開間: 12.9米 進深: 9.5米
占地面積: 94.32平方米
建筑面積: 204.17平方米
主體造價: 20-25萬
首層戶型:
二層戶型:
一 層:客廳、臥室(附衛生間)、廚房、餐廳、衛生間、儲存間、車庫
二 層:主臥(附衣帽間,衛生間,露臺)、臥室(附衣帽間,衛生間)
三層鄉村別墅
戶型基本信息
編號: DC0045
結構形式: 磚混結構
開間: 8.55米 進深: 11.6米
占地面積: 101.99平方米
建筑面積: 274.63平方米
主體造價: 20-25萬
首層戶型:
圖紙預覽:
一 層:客廳、臥室(附衣帽間)、廚房、餐廳、洗衣間、衛生間
二 層:客廳、臥室(附陽臺)、2臥室、書房、衛生間
三 層:臥室(附陽臺)、3臥室、衛生間、露臺
農村二層小別墅
戶型基本信息
編號: DC0054
結構形式: 磚混結構
開間: 11.34米 進深: 13.31米
占地面積: 136.40平方米
建筑面積: 254.44平方米
主體造價: 20-25萬
首層戶型:
圖紙預覽:
一 層:客廳、臥室(附衛生間)、臥室、儲藏室、廚房、餐廳、衛生間
二 層:休息區(附陽臺)、臥室(附衛生間)、2臥室、書房、衛生間
頂 層:露臺
二層農村自建房
戶型基本信息
編號: DC0112
結構形式: 磚混結構
開間: 13米 進深: 12.4米
占地面積: 142.77平方米
建筑面積: 249.95平方米
主體造價: 20-25萬
首層戶型:
圖紙預覽:
一 層:走廊、客廳、3臥室、廚房、餐廳、衛生間、雜物間
二 層:客廳(附露臺)、臥室(附衛生間)、臥室(附衣帽間)、衛生間、露臺
漂亮二層復式別墅
戶型基本信息
編號: DC0085
結構形式: 磚混結構
開間: 10.8米 進深: 10.7米
占地面積: 116.4平方米
建筑面積: 273.78平方米
主體造價: 22-26萬
首層戶型:
圖紙預覽:
一 層:客廳(中空)、臥室(附衛生間)、娛樂間、廚房、餐廳、衛生間
二 層:起居室(附陽臺)、臥室(附衛生間)、3臥室、衛生間
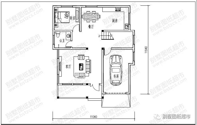
三層帶車庫新農村別墅
戶型基本信息
編號: DC0157
結構形式: 磚混結構
開間: 11.04米 進深: 11.94米
占地面積: 116.7平方米
建筑面積: 325.01平方米
主體造價: 22-26萬
首層戶型:
圖紙預覽:
一 層:走廊、客廳、臥室、廚房、餐廳、衛生間、車庫
二 層:客廳(附陽臺)、主臥(附衣帽間,衛生間)、2臥室、衛生間
三 層:客廳(附陽臺)、2臥室、衛生間、露臺
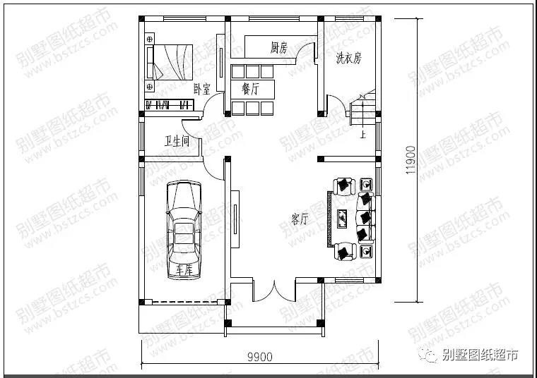
三層帶車庫新農村住宅
戶型基本信息
編號: DC0169
結構形式: 磚混結構
開間: 9.9米 進深: 11.9米
占地面積: 117.43平方米
建筑面積: 330.47平方米
主體造價: 22-26萬
首層戶型:
圖紙預覽:
一 層:客廳、臥室、廚房、餐廳、洗衣房、衛生間、車庫
二 層:客廳、臥室(附露臺)、臥室(附陽臺)、臥室、書房、衛生間
三 層:臥室(附衣帽間)、2臥室、衛生間、露臺
三層帶車庫露臺新農村房屋
戶型基本信息
編號: DC0144
結構形式: 磚混結構
開間: 12.5米 進深: 12米
占地面積: 135.54平方米
建筑面積: 380.48平方米
主體造價: 20-25萬
首層戶型:
圖紙預覽:
一 層:客廳、臥室、廚房、餐廳、衛生間、車庫
二 層:客廳、2臥室(附陽臺)、臥室(附書房)、臥室、衛生間
三 層:客廳(附陽臺)、2臥室、儲藏室、衛生間、露臺
這8款別墅在農村很受歡迎,外觀時尚,功能性很強,造價也不貴,主體25萬搞定,非常適合農村建造哦!
.jpg)
本文由別墅圖紙超市編輯發布,如需了解更多,可登錄網站主頁http://www.www.xuzonghao.cn/,或者撥打我們的免費電話400-8080-889在線咨詢。
>>>>推薦閱讀:精選10款帶煙囪設計自建別墅,鄉村風味最經典!
>>>>推薦閱讀:開春建房不可錯過的8套自建別墅戶型,百看不厭還實用!
>>>>推薦閱讀:6套帶旋轉樓梯農村自建別墅,大氣有品位,看過的都說好