20款經典雙拼別墅,各有亮點,兄弟建房選它們絕對錯不了!
在我們的爺爺輩都講得是人多就是力量,孩子生得多,勞動力就多,生活才會好。因此一家多個孩子的現象才是常態,我們的父輩基本都是3個及以上的吧!但是雖然孩子多,宅基地卻不多,大部分的是一家才一塊宅基地,限制于宅基地,現在要建房子確實是顧慮較多的。那這種人多地少的情況要在農村自建房,蓋雙拼別墅是再合適不過了,施工時相互照看幫襯,蓋好之后在生活上也能相互照應,以后成家了還能促進下輩的和諧,想想都是極好的。于是今天小編就給大家帶來20款雙拼自建房,每一套都各有亮點,看看你們最喜歡哪一套吧!
現成圖紙
編號: DC0360
層數: 二層
結構形式: 磚混結構
主體造價: 43-48萬
開間: 16米
進深: 13.2米
占地面積: 212.8平方米
建筑面積: 483.89平方米
一 層: 客廳、臥室(附衛生間)、廚房、餐廳、衛生間
二 層: 起居室、臥室(附衛生間)、臥室(附陽臺)、臥室、衛生間
編號: DC0301
層數: 三層
結構形式: 框架結構
主體造價: 50萬以上
開間: 19米
進深: 11.1米
占地面積: 203.04平方米
建筑面積: 625.05平方米
一 層: 客廳、臥室(附衛生間)、廚房、餐廳、儲藏室、衛生間
二 層: 客廳、臥室(附衛生間,陽臺)、2臥室、衛生間
三 層: 客廳、臥室、娛樂室、衛生間、露臺
編號: DC0266
層數: 三層
結構形式: 框架結構
主體造價: 40-46萬
開間: 16米
進深: 11.7米
占地面積: 162.9平方米
建筑面積: 519.13平方米
一 層: 客廳、臥室(附衣帽間)、廚房、餐廳、衛生間
二 層: 客廳(附陽臺)、臥室(附衣帽間)、2臥室、衛生間
三 層: 客廳(附露臺)、娛樂室、臥室、儲藏室、衛生間、露臺
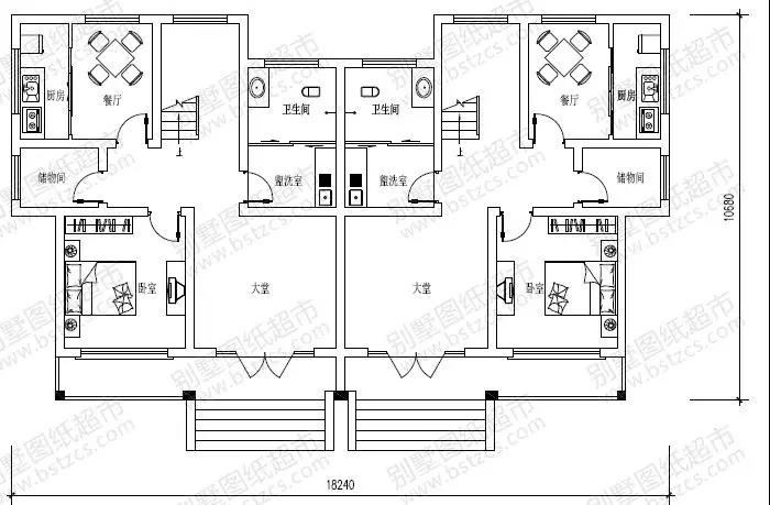
編號: DC0240
層數: 二層
結構形式: 磚混結構
主體造價: 36-42萬
開間: 18.24米
進深: 11.44米
占地面積: 202.94平方米
建筑面積: 405.88平方米
一 層: 客廳、臥室、廚房、餐廳、儲藏室、衛生間
二 層: 客廳、臥室(附陽臺)、2臥室、書房、衛生間
編號: DC0222
層數: 二層
結構形式: 磚混結構
主體造價: 32-38萬
開間: 22.8米
進深: 10.2米
占地面積: 239.66平方米
建筑面積: 599.15平方米
一 層: 客廳、2臥室、廚房、餐廳、衛生間
二 層: 客廳(附陽臺)、臥室(附陽臺)、3臥室、書房、衛生間
閣 樓: 儲藏間
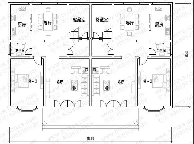
編號: DC0183
層數: 三層
結構形式: 磚混結構
主體造價: 32-38萬
開間: 18.24米
進深: 10.68米
占地面積: 220平方米
建筑面積: 508平方米
一 層: 大堂、臥室、廚房、餐廳、儲物間、盥洗室、衛生間
二 層: 客廳、臥室(附衛生間,陽臺)、臥室、盥洗室、衛生間
三 層: 臥室、活動室、儲物室、盥洗室、衛生間、露臺
編號: DC0063
層數: 三層
結構形式: 框架結構
主體造價: 42-50萬
開間: 18.26米
進深: 8.9米
占地面積: 162.5平方米
建筑面積: 460.74平方米
一 層: 客廳、臥室、廚房、餐廳、衛生間
二 層: 客廳(附陽臺)、2臥室、衛生間
三 層: 臥室(附陽臺)、臥室、衛生間、露臺
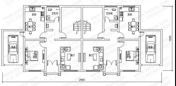
編號: DC0117
層數: 二層
結構形式: 磚混結構
主體造價: 38-45萬
開間: 24.8米
進深: 10米
占地面積: 221.6平方米
建筑面積: 388.29平方米
一 層: 客廳、臥室、廚房、餐廳、衛生間、車庫
二 層: 臥室(附露臺)、臥室(附書房)、臥室、衛生間、陽臺
編號: DC0163
層數: 三層
結構形式: 磚混結構
主體造價: 40-48萬
開間: 18米
進深: 11.5米
占地面積: 214.14平方米
建筑面積: 531.58平方米
一 層: 客廳、臥室、廚房、餐廳、儲藏室、衛生間
二 層: 客廳(附陽臺)、2臥室、衛生間
三 層: 2臥室、衛生間、露臺
定制設計案例
定制設計案例一
定制設計案例二
定制設計案例三
定制設計案例四
定制設計案例五
定制設計案例六
定制設計案例七
定制設計案例八
定制設計案例九
定制設計案例十
定制設計案例十一
.jpg)
本文由別墅圖紙超市編輯發布,如需了解更多,可登錄網站主頁http://www.www.xuzonghao.cn/,或者撥打我們的免費電話400-8080-889在線咨詢。
>>>>推薦閱讀:7款雙拼三層自建別墅,農村兄弟建房首選!
>>>>推薦閱讀:兄弟,一起建個這樣的二層帶陽臺雙拼別墅吧!
>>>>推薦閱讀:6款經典雙拼別墅設計圖,兄弟建房有這些就夠了