11款一層農村別墅,造價便宜戶型好,都是值得建的好房子!
新的一年,新的開始,隨著2018年中央一號文件的公布,鄉村的發展前景也越來越好。農村戶口真真是身價倍增!越來越多的朋友選擇在農村自建房了。由于開春是農村建房的好時節,我們在工作中也遇到很多留言咨詢一層自建房的。今天小編就專題分享一下一層的自建房給大家吧!
01
編號: DC0371
層數: 一層
結構形式: 磚混結構
主體造價: 18-22萬
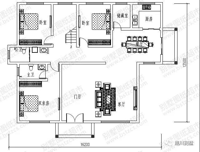
開間: 14米
進深: 11米
占地面積: 158.6平方米
建筑面積: 188.6平方米
02
編號: DC0369
層數: 一層
結構形式: 磚混結構
主體造價: 16-20萬
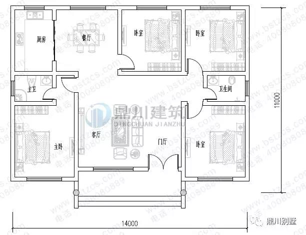
開間: 15米
進深: 11.4米
占地面積: 177.39平方米
建筑面積: 217.03平方米
03
編號: DC0350
層數: 一層帶閣樓
結構形式: 磚混結構
主體造價: 18-22萬
開間: 17.4米
進深: 12米
占地面積: 186.56平方米
建筑面積: 235.58平方米
04
編號: DC0302
層數: 一層
結構形式: 磚混結構
主體造價: 25-30萬
開間: 19.8米
進深: 13.8米
占地面積: 243.56平方米
建筑面積: 346.94平方米
05
編號: DC0264
層數: 一層帶閣樓
結構形式: 磚混結構
主體造價: 15-20萬
開間: 13.8米
進深: 12米
占地面積: 138.15平方米
建筑面積: 202.41平方米
06
編號: DC0249
層數: 一層帶閣樓
結構形式: 磚混結構
主體造價: 14-18萬
開間: 13.2米
進深: 12米
占地面積: 153.38平方米
建筑面積: 187.85平方米
07
編號: DC0237
層數: 一層帶閣樓
結構形式: 磚混結構
主體造價: 10-15萬
開間: 16米
進深: 9.3米
占地面積: 145.38平方米
建筑面積: 267.99平方米
08
編號: DC0220
層數: 一層
結構形式: 磚混結構
主體造價: 15-18萬
開間: 16.2米
進深: 12.5米
占地面積: 183.25平方米
建筑面積: 236.72平方米
09
編號: DC0189
層數: 一層帶閣樓
結構形式: 磚混結構
主體造價: 16-20萬
開間: 14.04米
進深: 11.34米
占地面積: 144.36平方米
建筑面積: 210.69平方米
10
編號: DC0158
層數: 一層
結構形式: 磚混結構
主體造價: 9-12萬
開間: 15.5米
進深: 9米
占地面積: 133.2平方米
建筑面積: 178.14平方米
11
編號: DC0070
層數: 一層
結構形式: 磚混結構
主體造價: 10-13萬
開間: 11.1米
進深: 9米
占地面積: 91.94平方米
建筑面積: 104.13平方米
.jpg)
本文由別墅圖紙超市編輯發布,如需了解更多,可登錄網站主頁http://www.www.xuzonghao.cn/,或者撥打我們的免費電話400-8080-889在線咨詢。
>>>>推薦閱讀:5套一層自建別墅,15萬拿下,戶型好到村里人搶著建!
>>>>推薦閱讀:農村一層別墅,主體造價卻要22萬,你不想知道為什么嗎?
>>>>推薦閱讀:同款一層帶閣樓別墅設計,不同外墻裝飾彰顯不凡氣質