三款帶院子、帶堂屋的小別墅,農村建房不要太適合
小編認為在農村自建房,選擇建一個既帶有堂屋,又帶院子的的農村房子才更接地氣。因為在農村來說,堂屋是農村房子區別于城市房子很重要的一個功能區域,一般的節日祭祖,紅白喜事擺酒都會選擇在堂屋進行,可以說是意義非凡了。那么如果宅基地足夠大的朋友,還可以考慮自建房的時候帶個小院子,院子里可以種種花草樹木,甚至流水涼亭,這樣的生活想想就悠閑自在。下面就為大家帶來三款帶院子、帶堂屋的小別墅,農村建的話不要太適合。
編號: DC0213
層數: 二層
結構形式: 磚混結構
主體造價: 18-22萬
開間: 13米
進深: 12.8米
占地面積: 172.65平方米
建筑面積: 250.95平方米
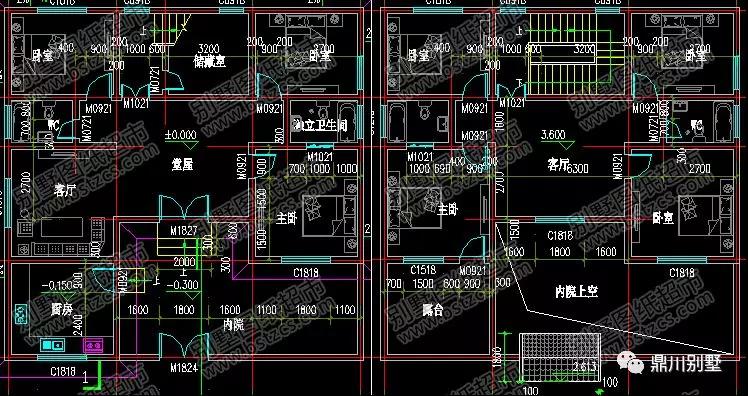
首層布局
一 層: 內院、堂屋、客廳、臥室(附衛生間)、2臥室、廚房、儲藏室、衛生間
二 層: 客廳、主臥(附衛生間,露臺)、3臥室、衛生間
圖紙預覽
編號: DC0162
層數: 三層
結構形式: 磚混結構
主體造價: 20-24萬
開間: 9米
進深: 15米
占地面積: 135平方米
建筑面積: 300平方米
首層布局
一 層: 院子、麻將室、堂屋、客廳、廚房兼餐廳、衛生間、車庫
二 層: 臥室(附書房,露臺)、臥室(附陽臺)、3臥室、衛生間
三 層: 臥室、桌球室、衛生間、露臺
圖紙預覽
編號: DC0241
層數: 三層
結構形式: 磚混結構
主體造價: 18-24萬
開間: 15.24米
進深: 9.72米
占地面積: 105.98平方米
建筑面積: 209.36平方米
首層布局
一 層: 堂屋、2臥室、廚房、餐廳、衛生間
二 層: 客廳(附陽臺)、臥室(附陽臺)、臥室、衛生間、屋頂曬臺
三 層: 屋頂曬臺
圖紙預覽
.jpg)
本文由別墅圖紙超市編輯發布,如需了解更多,可登錄網站主頁http://www.www.xuzonghao.cn/,或者撥打我們的免費電話400-8080-889在線咨詢。
>>>>推薦閱讀:6套適合農村的別墅,第1套最省錢,第4、6最漂亮!
>>>>推薦閱讀:5款建房案例告訴你,這套農村別墅戶型建出來就是好看有面子
>>>>推薦閱讀:22萬就能搞定的新農村三層別墅設計圖,拿回家就趕緊建吧!