9套進深11米左右的自建別墅設計,小宅基地的大選擇!
受國家對農村宅基地政策規定的影響,很多的農民在批宅基地的時候都受到了限制,因此小宅基地在農村自建房設計中占據了較大的份額。小戶型的設計在一定程度上反映出了現有的農村別墅的特征,那么如何設計才能做出最合適小宅基地的農村別墅呢?如果你家也剛好準備建一套進深11米左右的別墅,那這9套進深11米左右的自建別墅設計,你可千萬不要錯過喲!
二層復式帶車庫別墅
編號: DC0351
層數: 二層
結構形式: 磚混結構
開間: 11.8米 進深: 11.1米
占地面積: 132.86平方米
建筑面積: 325.38平方米
主體造價: 25-30萬
一 層:玄關、客廳(中空)、臥室、廚房、餐廳、儲藏室、衛生間、車庫
二 層:客廳、棋牌室(附陽臺)、臥室(附衛生間)、2臥室、衛生間
首層戶型:
二層戶型:
實用經濟型一層小別墅
編號: DC0371
層數: 一層
結構形式: 磚混結構
開間: 14米 進深: 11米
占地面積: 154.34平方米
建筑面積: 224.27平方米
主體造價: 18-22萬
一 層:門廳、客廳、臥室(附衛生間)、3臥室、廚房、餐廳、衛生間
戶型圖:
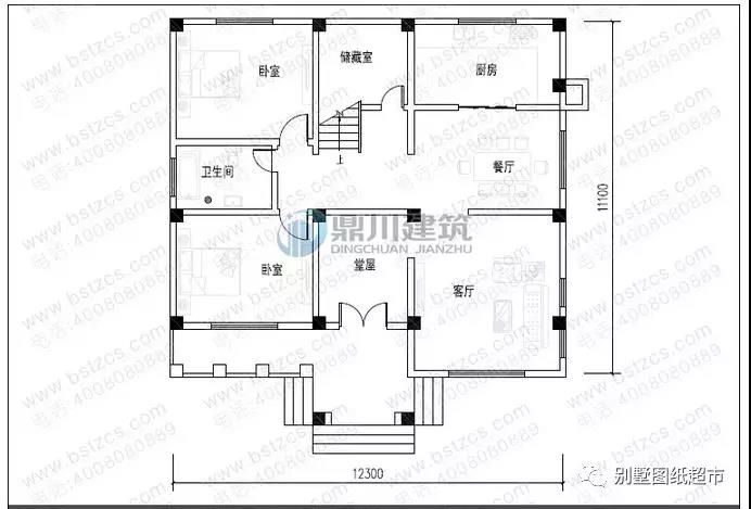
二層帶露臺農村別墅
編號: DC0287
層數: 二層
結構形式: 框架結構
開間: 12.3米 進深: 11.1米
占地面積: 130平方米
建筑面積: 295.19平方米
主體造價: 25-30萬
一 層:走廊、堂屋、客廳、2臥室、廚房、餐廳、衛生間、儲藏室
二 層:客廳(附露臺)、臥室(附書房,露臺)、臥室(附露臺)、臥室、衛生間
首層戶型:
圖紙預覽:
大氣三層帶屋頂平臺歐式別墅
編號: DC0316
層數: 三層
結構形式: 框架結構
開間: 14.7米 進深: 11.1米
占地面積: 154.95平方米
建筑面積: 487.39平方米
主體造價: 44-50萬
一 層:門廳、客廳(中空)、臥室(附衛生間)、臥室、棋牌室、廚房、餐廳、衛生間
二 層:起居室、主臥(附書房,衣帽間,衛生間,陽臺)、2臥室、衛生間
三 層:健身廳、臥室(附陽臺)、臥室(附衣帽間)、2臥室、衛生間、陽臺
頂 層:露臺
首層戶型:
圖紙預覽:
歐式三層雙拼別墅
編號: DC0301
層數: 三層
結構形式: 框架結構
開間: 19米 進深: 11.1米
占地面積: 203.04平方米
建筑面積: 625.05平方米
主體造價: 50萬以上
一 層:客廳、臥室(附衛生間)、廚房、餐廳、儲藏室、衛生間
二 層:客廳、臥室(附衛生間,陽臺)、2臥室、衛生間
三 層:客廳、臥室、娛樂室、衛生間、露臺
首層戶型:
圖紙預覽:
二層帶閣樓的別墅
編號: DC0260
層數: 三層
結構形式: 框架結構
開間: 14.2米 進深: 11.1米
占地面積: 144.24平方米
建筑面積: 344.08平方米
主體造價: 34-40萬
一 層:大堂、客廳、臥室(附衛生間)、臥室、廚房、餐廳、衛生間
二 層:起居室、臥室(附露臺)、臥室(附陽臺)、臥室、衛生間、陽臺
閣 樓:儲藏間、衛生間、露臺
首層戶型:
圖紙預覽:
復式三層帶車庫簡歐小別墅
編號: DC0229
層數: 三層
結構形式: 磚混結構
開間: 11.7米 進深: 11.1米
占地面積: 125.93平方米
建筑面積: 303.96平方米
主體造價: 24-28萬
一 層:客廳(中空)、臥室、廚房、餐廳、衛生間、車庫
二 層:小客廳、臥室(附陽臺)、2臥室、衛生間
三 層:小客廳、臥室(附陽臺)、2臥室、衛生間、露臺
首層戶型:
圖紙預覽:
小面積三層別墅
編號: DC0203
層數: 三層
結構形式: 磚混結構
開間: 7米 進深: 11.1米
占地面積: 76.53平方米
建筑面積: 219.9平方米
主體造價: 18-22萬
一 層:客廳、臥室、廚房、餐廳、衛生間、儲藏室
二 層:小客廳(附陽臺)、2臥室、書房、衛生間
三 層:多功能房、2臥室、衛生間、露臺
首層戶型:
圖紙預覽:
新農村二層帶車庫別墅
編號: DC0100
層數: 二層
結構形式: 磚混結構
開間: 12米 進深: 11.1米
占地面積: 125.03平方米
建筑面積: 271.92平方米
主體造價: 18-25萬
一 層:客廳、臥室、廚房、餐廳、衛生間、車庫
二 層:起居室、主臥(附書房,儲藏室,陽臺)、2臥室、衛生間、露臺
首層戶型:
圖紙預覽:
.jpg)
本文由別墅圖紙超市編輯發布,如需了解更多,可登錄網站主頁http://www.www.xuzonghao.cn/,或者撥打我們的免費電話400-8080-889在線咨詢。
>>>>推薦閱讀:8乘10農村自建房該怎么設計?
>>>>推薦閱讀:12X11.6米二層農村自建小別墅,主體25萬左右就能搞定
>>>>推薦閱讀:一款二層別墅,一款三層別墅,自建房選哪款