10款帶露臺車庫的農村別墅,實用經濟戶型好!
在農村建房是很大的一件事,因此只要是打算建房的戶主從準備建房開始就會做很多準備。比如說房子的類型、房子的布局、房子的面積、房子的預算以及房子的功能結構等等都要和家人商量了才能最終確定。今天小編就從這些角度考慮,介紹10款帶露臺和車庫的小別墅給大家,不僅功能齊全、外觀時尚,最重要的還是經濟實用,開春準備農村自建房的趕緊收藏起來喲!
編號:DC0362
層數:二層
結構形式:磚混結構
主體造價:26-30萬
開間:17.1米
進深:10.2米
占地面積:181.49平方米
建筑面積:341.34平方米
一層:門廳、客廳、臥室(附衛生間)、臥室、廚房、餐廳、衛生間、車庫
二層:臥室(附衛生間)、臥室(附露臺)、2臥室、衛生間、露臺
編號:DC0293
層數:二層
結構形式:磚混結構
主體造價:26-30萬
開間:15.9米
進深:10.8米
占地面積:151.83平方米
建筑面積:292.61平方米
一層:門廳、客廳(中空)、2臥室、廚房、餐廳、衛生間、車庫
二層:客廳、臥室(附露臺)、臥室(附書房)、臥室、衛生間、露臺
編號:DC0296
層數:二層
結構形式:磚混結構
主體造價:26-30萬
開間:14.7米
進深:10.8米
占地面積:149.03平方米
建筑面積:333.32平方米
一層:玄關、客廳、臥室、娛樂室、廚房(附儲藏室)、餐廳、衛生間、車庫
二層:起居室、臥室(附陽臺)、3臥室、書房、衛生間、露臺
編號:DC0289
層數:二層
結構形式:磚混結構
主體造價:22-26萬
開間:15米
進深:10.2米
占地面積:134.19平方米
建筑面積:256.29平方米
一層:客廳、臥室(附衛生間)、廚房、餐廳、衛生間、車庫
二層:起居室、臥室(附衛生間,陽臺)、臥室、書房、衛生間、露臺
編號:DC0275
層數:二層
結構形式:磚混結構
主體造價:16-20萬
開間:13.8米
進深:12米
占地面積:121.09平方米
建筑面積:261.01平方米
一層:堂屋、臥室、廚房、餐廳、衛生間、車庫
二層:客廳(附露臺)、休息區(附陽臺)、娛樂室、臥室(附衣帽間)、臥室、衛生間
編號:DC0209
層數:三層
結構形式:框架結構
主體造價:28-32萬
開間:12.2米
進深:13.6米
占地面積:125平方米
建筑面積:330.6平方米
一層:客廳、臥室、廚房、餐廳、衛生間、車庫
二層:臥室(附衛生間,露臺)、2臥室、衛生間
三層:休閑廳(附露臺)、臥室(附陽臺)、衛生間
編號:DC0202
層數:三層
結構形式:磚混結構
主體造價:20-25萬
開間:10.5米
進深:12米
占地面積:121.1平方米
建筑面積:310平方米
一層:客廳、臥室、廚房、餐廳、衛生間、車庫
二層:臥室(附衛生間,書房)、臥室(附衣帽間)、臥室、衛生間、露臺
三層:健身房、露臺
編號:DC0037
層數:三層
結構形式:磚混結構
主體造價:20-25萬
開間:11.45米
進深:10.9米
占地面積:108.7平方米
建筑面積:305.6平方米
一層:客廳、臥室、廚房、餐廳、儲藏室、衛生間、車庫
二層:客廳、主臥(附走入式衣柜,衛生間,陽臺)、臥室、書房、衛生間
三層:活動室、臥室、書房、衛生間、露臺
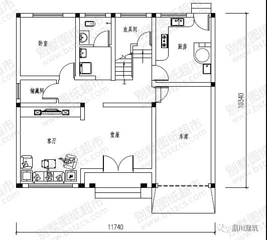
編號:DC0172
層數:三層
結構形式:磚混結構
主體造價:22-27萬
開間:11.74米
進深:10.34米
占地面積:117.85平方米
建筑面積:307.92平方米
一層:堂屋、客廳、臥室、廚房(兼餐廳)、儲藏間、農具間、衛生間、車庫
二層:客廳、臥室(附陽臺)、2臥室(附共用衛生間)、臥室、儲藏間、衛生間
三層:臥室(附陽臺)、2臥室、儲藏間、衛生間、露臺
編號:DC0144
層數:三層
結構形式:磚混結構
主體造價:20-25萬
開間:12.5米
進深:12米
占地面積:135.54平方米
建筑面積:380.48平方米
一層:客廳、臥室、廚房、餐廳、衛生間、車庫
二層:客廳、2臥室(附陽臺)、臥室(附書房)、臥室、衛生間
三層:客廳(附陽臺)、2臥室、儲藏室、衛生間、露臺
以上10款小別墅戶型方正,造價也不高,有幾款還帶堂屋,這也是很多農村人比較喜歡的功能。以上這10款你最中意哪一款呢?歡迎聯系我們客服購買喲!
.jpg)
本文由別墅圖紙超市編輯發布,如需了解更多,可登錄網站主頁http://www.www.xuzonghao.cn/,或者撥打我們的免費電話400-8080-889在線咨詢。
>>>>推薦閱讀:這8套農村別墅設計,戶型討喜,堂屋露臺一應俱全!
>>>>推薦閱讀:6款經典雙拼別墅設計圖,兄弟建房有這些就夠了
>>>>推薦閱讀:分享10套戶型正風水好的四層帶車庫露臺自建別墅圖紙給您